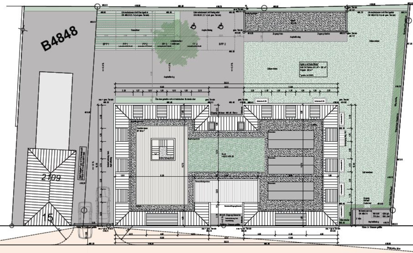
Freiestrasse, Uster

Freiestrasse 17, 8610 Uster

Neubauprojekt:
5 Wohnungen mit Gewerbe
Nutzung:
Wohnen / Gewerbe
Realisierung:
Herbst/Winter 2024 - Frühjahr 2026
Bauherrschaft:
Privat
Unsere Leistungen:
Projektentwicklung, Projektleitung, Bauleitung